Проект D - 162
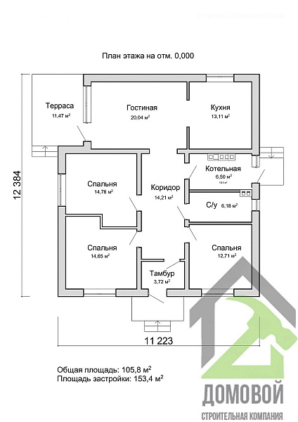
- Общая площадь: 105.8 м²
- Строительная площадь: 153.4 м²
- Фасад: 11.2 м²
- Ширина: 12.3 м
- Время строительства: 3.5 мес.
- Спален: 3
- Санузлов: 1
- Площадь гостиной: 20 м²
Цена от:
4 982 000 ₽
Расчётная стоимость строительства актуальна при строительстве в г. Краснодар, в комплектации "Тёплый контур", при форме оплаты - ипотека с применением эскроу-счёта. Стоимость строительства на вашем участке в нужной вам комплектации можно бесплатно уточнить у ответственных сотрудников СК "Домовой".
1 Страница 1 из 3
33%
Расчет стоимости строительства
Форма заказа расчета стоимости
Скачать подробный план дома на участке
Варианты проектов
Базовый дом
- Проект
- Архитектурно-строительный
- Фундамент
- свайно - ростверковый + монолитная плита пола
- Несущие стены и перегородки варианты
- газоблок
- Облицовка фасада и утепление
- Облицовка декоративным кирпичом
- утепление пеноплексом 30 мм
- 20 мм вентзазор
- Кровля варианты:
- вальмовая
- металлочерепица
- Для 2-х этажных домов монолитная железобетонная лестница и межэтажное перекрытие
- Остекление оконных проёмов
- Металлическая входная дверь
- Разводка коммуникаций по дому
- электрика;
- сантехника;
- отопление;
- тёплый пол.
- Цементно-песчаная стяжка пола
- Штукатурка стен
- Утепление потолочного перекрытия
Дом с фасадом
- Проект
- Архитектурно-строительный
- Фундамент
- свайно - ростверковый + монолитная плита пола
- Несущие стены и перегородки варианты
- газоблок
- Облицовка фасада и утепление
- Облицовка декоративным кирпичом
- утепление пеноплексом 30 мм
- 20 мм вентзазор
- Кровля варианты:
- вальмовая
- металлочерепица
- Для 2-х этажных домов монолитная железобетонная лестница и межэтажное перекрытие
- Остекление оконных проёмов
- Металлическая входная дверь
- Разводка коммуникаций по дому
- электрика;
- сантехника;
- отопление;
- тёплый пол.
- Цементно-песчаная стяжка пола
- Штукатурка стен
- Утепление потолочного перекрытия
Дом под ключ
- Проект
- Архитектурно-строительный
- Фундамент
- свайно - ростверковый + монолитная плита пола
- Несущие стены и перегородки варианты
- газоблок
- Облицовка фасада и утепление
- Облицовка декоративным кирпичом
- утепление пеноплексом 30 мм
- 20 мм вентзазор
- Кровля варианты:
- вальмовая
- металлочерепица
- Для 2-х этажных домов монолитная железобетонная лестница и межэтажное перекрытие
- Остекление оконных проёмов
- Металлическая входная дверь
- Разводка коммуникаций по дому
- электрика;
- сантехника;
- отопление;
- тёплый пол.
- Цементно-песчаная стяжка пола
- Штукатурка стен
- Утепление потолочного перекрытия








